


|
缸筒內徑 (mm) |
活塞桿直徑 (mm) |
A | B | C | D | E | F | G | H | J | K | L | M | N | R | S | T |
|---|---|---|---|---|---|---|---|---|---|---|---|---|---|---|---|---|---|
| Φ63 | Φ40 | 290 | 80 | 40 | 42 | 80 | 100 | M20×1.5 | 48 | 68 | 40 | 30 | 28 | 228 | 18 | 45 | M33×2 |
| Φ80 | Φ50 | 310 | 100 | 50 | 50 | 90 | 120 | M20×1.5 | 56 | 68 | 50 | 40 | 35 | 240 | 20 | 56 | M42×2 |
| Φ100 | Φ63 | 340 | 120 | 60 | 62 | 90 | 145 | M27×2 | 65 | 75 | 60 | 50 | 44 | 270 | 20 | 63 | M48 x2 |
| Φ110 | Φ70 | 370 | 136 | 70 | 67 | 103 | 155 | M27×2 | 70 | 85 | 68 | 55 | 49 | 290 | 23 | 63 | M52×2 |
| Φ125 | Φ80 | 400 | 160 | 80 | 74 | 113 | 170 | M27×2 | 77 | 88 | 80 | 60 | 55 | 315 | 28 | 85 | M64×3 |
| Φ140 | Φ90 | 430 | 176 | 90 | 85 | 122 | 190 | M33×2 | 84 | 90 | 88 | 65 | 60 | 340 | 32 | 85 | M72x3 |
| Φ160 | Φ100 | 470 | 200 | 100 | 95 | 130 | 210 | M33 x 2 | 92 | 100 | 100 | 70 | 70 | 375 | 35 | 95 | M80×3 |
| Φ200 | Φ125 | 555 | 240 | 120 | 116 | 160 | 267 | M42×2 | 117 | 103 | 120 | 90 | 85 | 435 | 40 | 105 | M110×3 |
較軸式連接
|
缸筒 內徑 (mm) |
活塞桿 直徑 (mm) |
A | B | C | D | E | F | G | H | J | K | L | M | N | O | P | Q | R | S | T |
|---|---|---|---|---|---|---|---|---|---|---|---|---|---|---|---|---|---|---|---|---|
| Φ63 | Φ40 | 260 | 80 | 40 | 230 | 80 | 100 | M20×1.5 | 18 | 68 | 40 | 30 | 28 | 198 | 125 | 32 | 168 | 8 | 45 | M33×2 |
| Φ80 | Φ50 | 280 | 100 | 50 | 245 | 90 | 120 | M20×1.5 | 18 | 68 | 50 | 40 | 35 | 120 | 150 | 40 | 175 | 20 | 56 | M42×2 |
| Φ100 | Φ63 | 300 | 120 | 60 | 270 | 90 | 145 | M27×2 | 22 | 75 | 60 | 55 | 44 | 230 | 180 | 45 | 200 | 20 | 63 | M48×2 |
| Φ110 | Φ70 | 320 | 130 | 70 | 325 | 103 | 155 | M27×2 | 22 | 85 | 68 | 55 | 49 | 245 | 200 | 50 | 220 | 23 | 70 | M52×2 |
| Φ125 | Φ80 | 350 | 150 | 80 | 330 | 113 | 170 | M33×2 | 22 | 90 | 80 | 60 | 55 | 265 | 224 | 56 | 245 | 28 | 85 | M64×3 |
| Φ140 | Φ90 | 370 | 165 | 90 | 350 | 122 | 190 | M33×2 | 26 | 90 | 88 | 65 | 60 | 280 | 250 | 63 | 260 | 32 | 85 | M72×3 |
| Φ160 | Φ100 | 400 | 190 | lO | 380 | 130 | 210 | M33x2 | 26 | 100 | 100 | 70 | 70 | 305 | 280 | 80 | 285 | 35 | 95 | M80×3 |
| Φ200 | Φ125 | 470 | 230 | 120 | 420 | 160 | 267 | M42×2 | 32 | 103 | 120 | 90 | 85 | 345 | 345 | 100 | 325 | 40 | 105 | M110×3 |
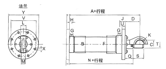
底部法蘭鏈接
|
缸筒 內徑 (mm) |
活塞桿 直徑 (mm) |
A | B | C | D | F | G | H | J | K | L | M | N | Q | S | T | U | V | X | Y |
|---|---|---|---|---|---|---|---|---|---|---|---|---|---|---|---|---|---|---|---|---|
| Φ63 | Φ40 | 260 | 80 | 40 | 80 | 100 | M20×1.5 | 18 | 68 | 40 | 30 | 28 | 198 | 18 | 45 | M33×2 | 25 | 150 | 8×18 | 180 |
| Φ80 | Φ50 | 280 | 100 | 50 | 90 | 120 | M20×1.5 | 18 | 68 | 50 | 40 | 35 | 210 | 20 | 56 | M42×2 | 28 | 180 | 8x22 | 218 |
| Φ100 | Φ63 | 300 | 120 | 60 | 92 | 145 | M27×2 | 22 | 75 | 60 | 50 | 44 | 230 | 20 | 63 | M48×2 | 32 | 212 | 8×22 | 250 |
| Φll0 | Φ70 | 325 | 130 | 70 | 105 | 155 | M27×2 | 22 | 85 | 68 | 55 | 49 | 245 | 23 | 70 | M52×2 | 32 | 232 | 8×22 | 270 |
| Φ125 | Φ80 | 350 | 150 | 80 | 115 | 170 | M27×2 | 22 | 90 | 80 | 60 | 55 | 265 | 28 | 85 | M64x3 | 36 | 265 | 8×22 | 305 |
| Φ140 | Φ90 | 370 | 165 | 90 | 122 | 190 | M33×2 | 26 | 90 | 88 | 65 | 60 | 280 | 32 | 85 | M72×3 | 36 | 300 | 8×26 | 350 |
| Φ160 | Φ100 | 400 | 190 | 100 | 130 | 210 | M33×2 | 26 | 100 | 100 | 70 | 70 | 305 | 35 | 95 | M80×3 | 40 | 325 | 8×26 | 375 |
| Φ200 | Φ125 | 470 | 230 | 120 | 160 | 267 | M42×2 | 32 | 103 | 120 | 90 | 85 | 345 | 40 | 105 | M110×3 | 44 | 360 | 8×30 | 415 |